STARNBERG: SONNIG UND RUHIG GELEGEN!

17 Fotos und Anhänge ansehen
Dirk Beiling Immobilien
Karwendelstr. 14 b, 82152 Krailling
Dirk Beiling

Immobilienfachwirt IHK

Nachbarschaft

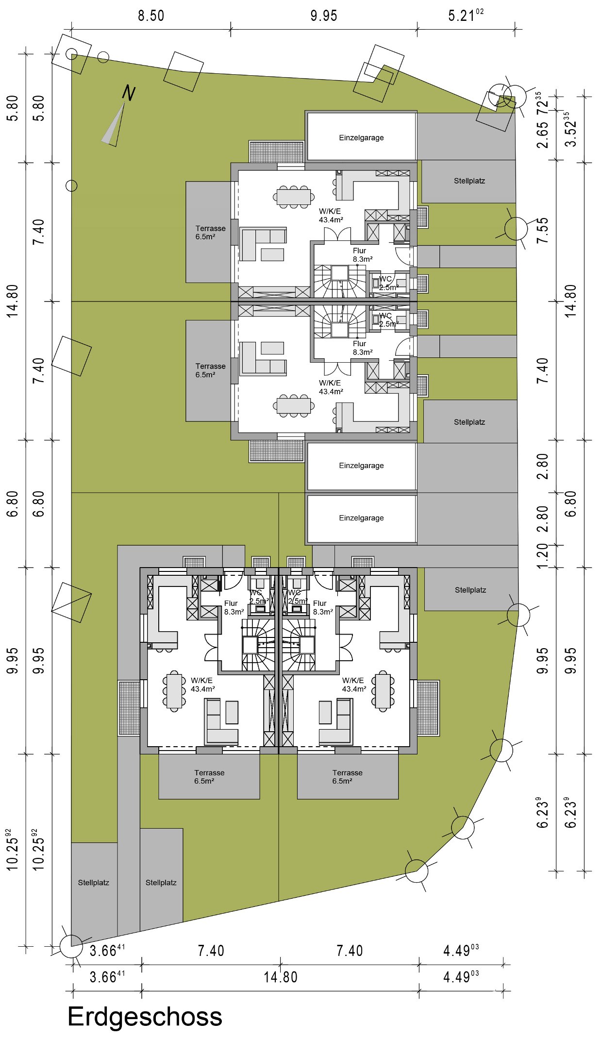
Grundrissplan EG

Grundrissplan OG

Grundrissplan DG

Grundrissplan UG

Ansicht Norden

Schnitte

Lageplan

Ansicht Norden

Ansicht Süden

Ansichten Westen

Ansicht Osten

Blick Süd-Westen

Blick Süd-Osten

Blick nach Süden

Für Kind und Kegel

Willkommen

STARNBERG: SONNIG UND RUHIG GELEGEN!

Eckdaten

  • Art Doppelhaushälfte
  • Lage 82319 Starnberg
  • Kaufpreis 1.375.000,00
  • Wohnfläche ca. 165
  • Grundstück ca. 284
  • Zimmer 5
  • Baujahr 2024
  • Heizungsart Fußbodenheizung
  • Gäste-WC ja
  • Stellplatztyp Garage
  • Stellplatzanzahl 2
  • Garagenanzahl 1
  • Bezugstermin Nach Vereinbarung
  • Bodenbelag Fliesen, Parkett
  • Zustand Erstbezug
  • Immobilien-ID 491

Immobilie

Umgeben von Feldern und Pferdekoppeln entstehen im idyllischen Starnberger Ortsteil-Hanfeld in ruhiger Lage am Ortsrand 4 familiengerecht geplante Doppelhaushälften in Süd-/Westausrichtung. Die rechtskräftige Baugenehmigung liegt vor. Die Grundstücke können auf Antrag real geteilt werden.

Die Lage der Gebäude auf dem Grundstück können Sie den beigefügten Plänen entnehmen.

Bei der Konzeption wurde vor allem auf multifunktionale Grundrisse Wert gelegt.

Im Erdgeschoss befindet sich ein großzügiger Wohn-/Ess- und Kochbereich, der über Fenstertüren und Schiebeelemente mit Terrasse und Garten verbunden ist.

Das Obergeschoss umfasst 3 Kinder-/Arbeits- bzw. Gästezimmer sowie ein Bad mit Wanne und Dusche.

In der gesamten Dachgeschossfläche erwartet Sie ein Rückzugsbereich mit Schlaf- und Ankleideräumen sowie einem Badezimmer.

Das Untergeschoss beinhaltet neben einem Haustechnik-, einem Abstell- und Hauswirtschaftsraum einen gut belichteten Hobbyraum mit Wohnraum-Ausstattung.

Aktuell können noch individuelle Anpassungen der Grundrisse vorgenommen werden.

Die hochwertige und zeitgemäße Ausstattung im Ausbau und in der Haustechnik wird in Auszügen aufgeführt.

Jedes Haus erhält zwei Kfz-Stellplätze.

Wohnfläche: jeweils ca. 165 m²

Lage

STARNBERG-HANFELD.
Oberhalb der Stadt Starnberg – nur einem "Katzensprung" entfernt – liegt der Ortsteil Hanfeld, der über die Staatsstrasse 2069 gut zu erreichen ist. Seit 2016 ist der Ort durch eine Umgehungsstraße vom Durchgangsverkehr befreit. Über Buslinien ist Hanfeld an den ÖNV angeschlossen.

Hanfeld ist ein idyllisches Dorf im Landkreis Starnberg. Die Lage ist geprägt von grünen Wiesen, Wäldern und sanften Hügeln, die eine herrliche Kulisse bieten. Die Umgebung lädt zu ausgedehnten Spaziergängen und Fahrradtouren ein und ist ein beliebtes Ausflugsziel für Erholungssuchende und Naturliebhaber. Hanfeld ist verkehrsgünstig gelegen und bietet eine gute Anbindung an die Autobahn A95 sowie an die öffentlichen Verkehrsmittel. Die Städte Starnberg und München sind in kurzer Zeit erreichbar und bieten eine Vielzahl an Freizeitmöglichkeiten und Einkaufsmöglichkeiten.

Hanfeld liegt jenseits der Moräne des Starnberger Sees. Zusammen mit der Topographie ermöglicht das sonnige Nachmittage und Abende bis zum Einbruch der Dunkelheit.

Ausstattung

– Rechtskräftige Baugenehmigung mit sämtlichen Nachbarunterschriften
– Ca. 165 m² Wohnfläche pro Haus
– Familien- bzw. Home-Office-gerechte Grundrisse
– Große, gut belichtete Hobbyräume in Wohnraumqualität
– Grundstücksanteile mit 243 m² bis 284 m² in Süd/West – Ausrichtung
– Kaufpreise ab € 1,375 Mio. (einschließlich 2 Kfz-Stellplätzen)
– Ausführung durch ansässige Handwerksunternehmen

Baubeschreibung:

Keller in WU-Beton
Außenwände und Bodenplatte gedämmt
Ziegelbau mit dampfdiffusionsoffenem
baubiologisch optimiertem Wandaufbau (Verputze und Farben auf mineralischer Basis)
Massive Treppenläufe
Fußboden-Heizung mit Wärmepumpe
Zentrale Lüftungsanlage mit Wärmerückgewinnung
Trinkwasserenthärtungsanlage
Bodengleiche Duschen
Einbaustrahler in den Geschoßdecken
Komplette Elektroausstattung mit Schalterprogrammen von Busch-Jaeger bzw. GIRA
Elektrisch betriebene Rollläden
Anthrazitfarbene Fenster,
Fenstertüren sowie Hebe-Schiebetüren mit 3-Scheiben Verglasung
Fliesen und Parkett mit Materialpreisen von 60,00 €/m2
Stumpf einschlagende Türen, 2,13 m hoch
Große Süd/West – Terrassen

Keller Gäste-WC

Sonstiges

Grundstücksflächen
Haus 1: ca. 254 m²
Haus 2: ca. 243 m²
Haus 3: ca. 243 m²
Haus 4: ca. 284 m2

Kaufpreise
Haus 1: € 1.395.000,—
Haus 2: € 1.375.000,—
Haus 3: € 1.375.000,—
Haus 4: € 1.395.000,—

Energieausweisangaben

  • Heizungsart Fußbodenheizung
  • Befeuerung / Energieträger Wärmepumpe
Wie können wir Ihnen behilflich sein?

Herzlichen Dank für Ihre Anfrage.

Wir werden diese so schnell wie möglich bearbeiten.

Wie können wir Ihnen behilflich sein?
* Pflichtfeld